Галерея изображений этого дома

Стоимость и описание этого дома

Цена под ключ: 950000 руб.
Оформите беспроцентную рассрочку!

    Оставить заявку на строительство

    Мы перезвоним Вам максимально быстро и расскажем подробно все детали

    +7 (347) 210-07-89

    Цена на каркасный дом указана в комплектации под ключ «заходи и живи» — с монолитным ленточным фундаментом, внутренней и внешней отделкой, наружной пропиткой, дверьми, окнами, разводкой электрики и канализации! Дом полностью готов к эксплуатации сразу после постройки.

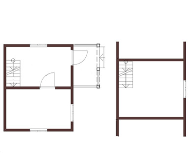
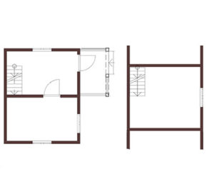
    Проект на фото не является окончательным. Варианты фундамента, отделки, размещение окон, дверей и размер комнат вариативны и обговариваются заранее исходя из ваших пожеланий. Это нормально — больше половины заказчиков на стадии согласования меняют какие-то моменты под себя.

    Дополнительно можно заказать улучшенные материалы отделки, окна большего размера, нестандартную высоту, стеклянные двери и т.д. Эти моменты также обговариваются, рассчитываются и фиксируются в договоре.

    Что входит в указанную стоимость:

    01 Доставка материалов В стоимость входит доставка материалов на объекты, расположенные до 35км от Челябинска. Если ваш участок дальше - будет немного дороже.
    02 Фундамент Монолитный ленточный с полами по утепленным лагам, либо свайно-винтовой. Конкретное решение зависит от самого участка и Ваших личных пожеланий.
    03 Утепление Минеральная вата в 100мм (полы, стены, потолок). Утепление в 150-300мм обсуждается отдельно, каждый дополнительный слой в 50мм увеличивает общую стоимость примерно на 1000руб/м2 по полу.
    04 Внутренняя отделка Внутренняя отделка пола, стен, потолка вагонкой/фальшбрусом/ГКЛ под обои по Вашему желанию.
    05 Внешняя отделка Евровагонка / фальш-брус / металлический сайдинг на ваш выбор. Вариант с отделкой деревом дополнительно покрывается пропиткой (цвет также на Ваше усмотрение).
    06 Кровля Металлочерепица толщиной 0.4мм. Цвет - любой, на выбор. По желанию, возможен профнастил или мягкая кровля.
    07 Полы Черновые — обрезная доска сосна 25х150, чистовые — половая доска 35 мм.
    08 Окна и двери Окна - белые ПВХ 1000х1000мм. Входная дверь - металлическая, Российского пр-ва. Внутренние двери - деревянные, из массива сосны.
    09 Разводка электричества На входе в дом - щиток с автоматом + разводка электричества по всему дому. Розетки/выключатели/светильники предоставляете Вы.
    10 Вывод канализации Выводим канализацию из кухни и туалета за периметр дома (расстояние от дома и конкретные инженерные решения обсуждаются индивидуально).

    Закажите каркасный дом 5х5 с мансардой с полной отделкой под ключ в Уфе или области от компании "Сфера". Собственные пиломатериалы, проверенные временем бригады и минимальные накладные расходы позволяют нам удерживать выгодные цены и гарантировать самое высокое качество строительства.